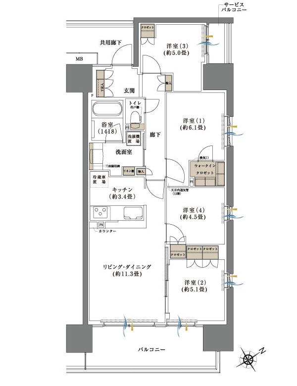
- C-Ltype
- 4LDK+WIC
- 専有面積/ 80.10m²(約24.23坪)
- バルコニー面積/11.80m²
サービスバルコニー面積/2.39m²
- 凡例:
…通風、
…採光、
…収納
※掲載の間取図は計画段階の図面を基に描き起こしたもので、今後変更となる可能性があります。最新の図面集をご確認ください。
高台だからこその眺望
※この眺望は2025年12月C棟12階から撮影されたもので、階数・季節によって見え方は異なり、同タイプ全ての住戸の景観を保証するものではありません。また、将来に渡って、景観を保証するものではありません。
×
※ゲストサロンにはじめてご来場いただき、モデルルームを見学・アンケートにご記入いただいたお客様に限ります。キャンペーン期間中1家族につき1回とさせていただきます。商品がなくなり次第終了とさせていただきます。未成年者の方のみのご来場は対象外とさせていただきます。
※アンケートご記入後、お買物券引換券を差し上げますので、イオンタウンふじみ野店2階インフォメーションにて、お買物券とお引換えください。引換え時間:10:00〜19:00
※アンケートご記入後、お買物券引換券を差し上げますので、イオンタウンふじみ野店2階インフォメーションにて、お買物券とお引換えください。引換え時間:10:00〜19:00


